1. Accueil
  2. Achat
  3. Achat Terrain
  4. Achat Terrain PISCOP (95350)

Terrain à vendre 522 m2 PISCOP - 95

Ref : 20207

210 000 €

  • Honoraires charge vendeur
Terrain à vendre - 522 m2 - Piscop - 95 - ILE-DE-FRANCE
Terrain à vendre - 522 m2 - Piscop - 95 - ILE-DE-FRANCE
Exclusivité
Envoyer un message
Message
Envoyer ce bien à un ami

Description

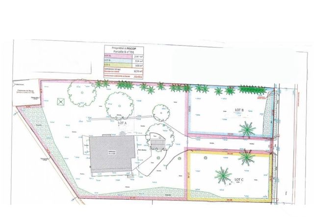
Sous couvert d'une division parcellaire, ce terrain constructible de 522m² situé dit lot B, dans la commune recherchée de Piscop représente une opportunité rare pour concrétiser votre projet immobilier. Idéalement exposé et bénéficiant d'un environnement calme et résidentiel, il offre la possibilité de construire la maison de vos rêves, en harmonie avec le cadre verdoyant de la région.

La parcelle dispose d'une topographie favorable, prête à accueillir divers types de constructions, tout en offrant un espace extérieur généreux pour jardin, terrasse ou aménagements extérieurs. Située à proximité des commodités locales, écoles, transports et axes routiers, elle combine tranquillité et praticité.

Que vous soyez investisseur, promoteur ou futur propriétaire désireux de concevoir un habitat personnalisé, ce terrain à fort potentiel constitue une base idéale pour un projet ambitieux et pérenne. Les opportunités de division ou d'aménagement complémentaire peuvent également être étudiées selon les règles d'urbanisme locales.

Prix de présentation : 210 000 euros

Localisation

Laissez-nous vos coordonnées pour obtenir la localisation

Envoyer

Afficher sur la carte :

Demander la localisation

Vue globale

  • Surface totale : 522 m2

À savoir

Les performances énergétiques

Non soumis au DPE

Ce bien est proposé par l'agence CENTURY 21 Osmose

CENTURY 21 Osmose

CENTURY 21 Osmose

17 bis avenue Jean Jaurès

95330 DOMONT

01 39 35 42 22
qualitelis Votre agence est notée
Achat Vente
8,8/10

Nos offres

Notre agence immobilière à Domont vous propose :

Calculer vos mensualités
de remboursement

Montant du prêt :
Durée du crédit
Taux d'intérêt (hors assurances)

vos mensualités

- € par mois

(Dont -€ d’assurances)

Crédit immobilier simulation
et premiers calculs

vous êtes acquéreur et vendeur,

Vous êtes acquéreur et vendeur, nos agents immobiliers peuvent vous accompagner dans vos projets

Contacter l'agence

Envoyer à un ami

Envoyer

Créer votre alerte

Rappel de vos critères de recherche :

Erreur dans les critères envoyés

Limite d'alertes atteinte

Cette alerte existe déjà

Cette alerte est déjà enregistrée pour cette adresse email. Vous continuerez à recevoir les biens correspondant à vos critères.

Une erreur est survenue

Merci de réessayer ultérieurement.

Votre alerte a été créée

Vous recevrez les biens correspondant à vos critères.

logo vente privées

48h

d’avance sur
le marché

Prenez un temps d’avance sur le marché en profitant gratuitement des Ventes Privées CENTURY 21

Si ce n’est déjà fait, allez compléter le profil de votre compte afin de pouvoir recevoir en avant-première des biens exclusifs, réservés à nos clients pendant les 48 premières heures suivant leur commercialisation.

Nos agences proposent régulièrement des biens comme celui que vous cherchez

Ne ratez pas une opportunité, on vous alerte en priorité !

Êtes-vous actuellement propriétaire de votre bien ?
Créer une alerte
Je souhaite être alerté
Voir les biens correspondants

Envoyer un message :

Envoyer